Wohnen in
Sternenfels

Sternenfels · Eigentumswohnungen

Acht provisionsfreie Eigentumswohnungen in ruhiger Lage – mit Aufzug, Stellplätzen und moderner Haustechnik.

Eckdaten

Baujahrvoraussichtlich 2025
Wohnungen2,5 – 4,5 Zimmer
Flächen41 – 158 m² + Keller
Barrierefreiteilweise möglich
Energiebedarf34,77 kWh/m²a
HeizungWärmepumpe · Fußbodenheizung
PV-Anlagevorhanden
AufzugUG bis DG
UGWasch-/Trockenraum · Fahrrad-/Kinderwagenraum
StellplätzeAnschluss E-Ladestation vorgesehen

Übersicht Verkaufsstand

Wohnung Wohnfläche Zimmer Preis Status
1A · EG links ca. 84,40 m² 2,5 395.000 € verfügbar
1B · EG mitte ca. 47,00 m² 2,5 225.000 € verfügbar
2 · EG rechts ca. 109,41 m² 3.5 445.000 € verfügbar
3A · OG links ca. 84,18 m² 2,5 395.000 € verfügbar
3B · OG mitte ca. 47,00 m² 2,5 225.000 € verfügbar
4 · OG rechts ca. 105,73 m² 3.5 525.000 € verfügbar
5 · DG + Spitzboden links ca. 157,89 m² 4,5 675.000 € verfügbar
6 · DG + Spitzboden rechts ca. 124,22 m² 3,5 585.000 € verfügbar

Ansichten

Vorderansicht

Vorderansicht

Klicken, um die Ansicht zu vergrößern.

Rückansicht

Rückansicht

Klicken, um die Ansicht zu vergrößern.

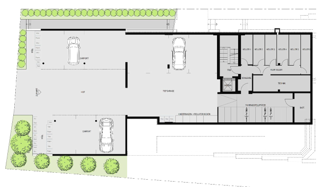
Untergeschoss

Zugang über Treppenhaus und Aufzug · Kellerräume · Fahrrad-/Kinderwagenbereiche · TG/Carport (E-Lade vorbereitet).

Untergeschoss Sternenfels

UG Sternenfels

Klicken, um den Plan zu vergrößern.

Wohnungspläne

Grundrisse als Vorschau – die vollständigen Unterlagen finden Sie im Exposé.

Grundriss 1A · EG links

1A · EG links

ca. 84,40 m² · 2,5 Zimmer · 395.000 € · Status: verfügbar

Grundriss 1B · EG mitte

1B · EG mitte

ca. 47,00 m² · 2,5 Zimmer · 225.000 € · Status: verfügbar

Grundriss 2 · EG rechts

2 · EG rechts

ca. 109,41 m² · 3,5 Zimmer · 445.000 € · Status: verfügbar

Grundriss 3A · OG links

3A · OG links

ca. 84,18 m² · 2,5 Zimmer · 395.000 € · Status: verfügbar

Grundriss 3B · OG mitte

3B · OG mitte

ca. 47,00 m² · 2,5 Zimmer · 225.000 € · Status: verfügbar

Grundriss 4 · OG rechts

4 · OG rechts

ca. 105,73 m² · 3,5 Zimmer · 525.000 € · Status: verfügbar

Grundriss 5 · DG + Spitzboden links

5 · DG + Spitzboden links

ca. 157,89 m² · 4,5 Zimmer · 675.000 € · Status: verfügbar

Grundriss 6 · DG + Spitzboden rechts

6 · DG + Spitzboden rechts

ca. 124,22 m² · 3,5 Zimmer · 585.000 € · Status: verfügbar

Persönliche Beratung

Für Beratung und Ortstermine stehen wir Ihnen gerne zur Verfügung. Nutzen Sie bitte das Kontaktformular – wir melden uns zeitnah zurück.