Wohnen in
Lomersheim

Im Hagen · Eigentumswohnungen

Sieben provisionsfreie Eigentumswohnungen – mit moderner Haustechnik, Stellplätzen und durchdachten Grundrissen.

Eckdaten

AdresseIm Hagen 6 · Mühlacker-Lomersheim
Baujahr2026
Wohnungen7 Eigentumswohnungen
Zimmer2,5 – 3,5 Zimmer
HeizungLuft-Wärme-Pumpe · Fußbodenheizung
PV-Anlagevorhanden
Stellplätzeinklusive je Wohnung

Visualisierung

Visualisierung – Ansicht 1

Visualisierung · Ansicht 1

Klicken, um zu vergrößern.

Visualisierung – Ansicht 2

Visualisierung · Ansicht 2

Klicken, um zu vergrößern.

Visualisierung – Ansicht 3

Visualisierung · Ansicht 3

Klicken, um zu vergrößern.

Ansichten

Nordansicht

Nordansicht

PDF öffnen

Ostansicht

Ostansicht

PDF öffnen

Südansicht

Südansicht

PDF öffnen

Westansicht

Westansicht

PDF öffnen

Wohnungspläne

Grundrisse als Vorschau – die vollständigen Unterlagen finden Sie im Exposé.

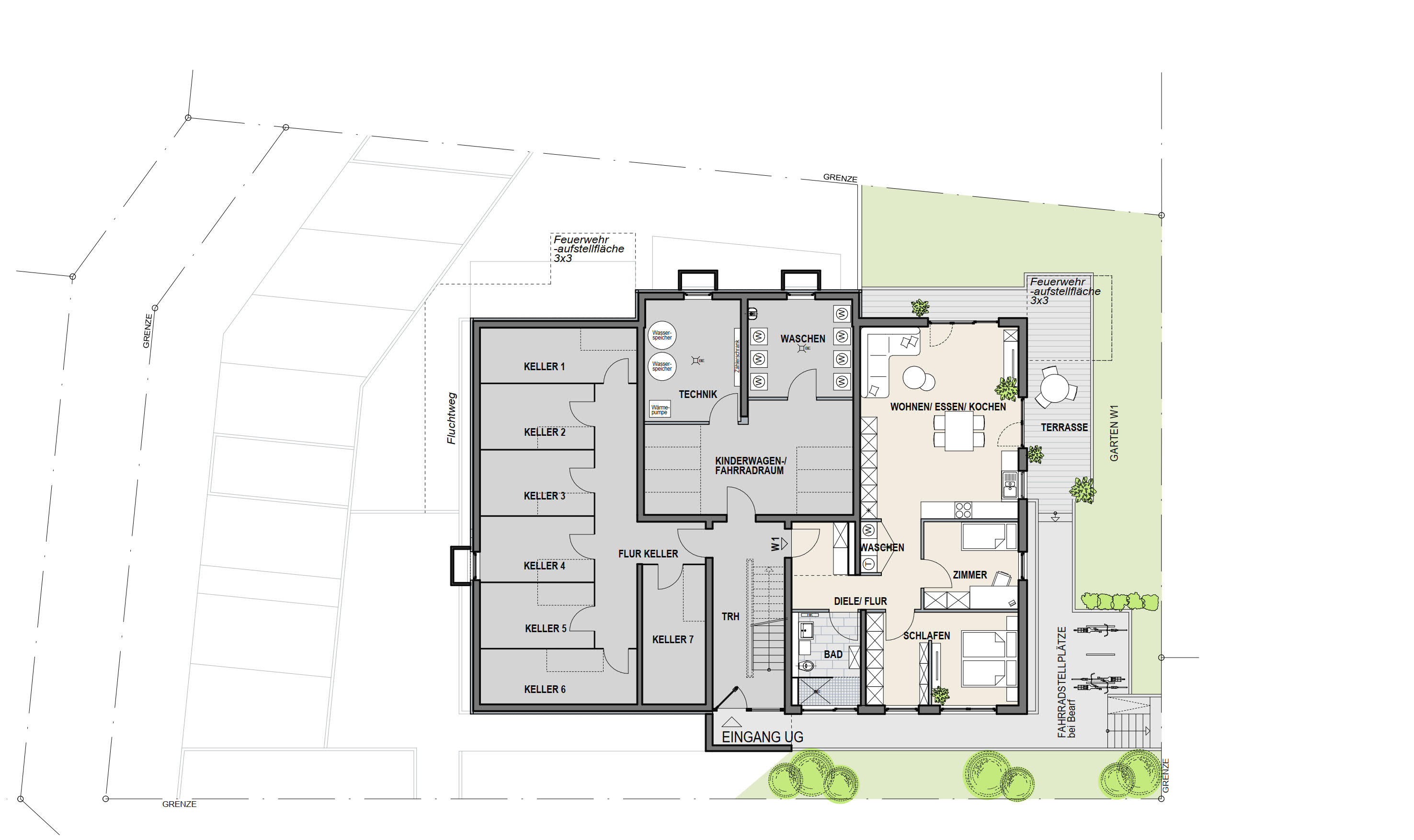
Whg. 1 – Untergeschoss rechts (Plan UG)

Whg. 1 · UG rechts

84,84 m² · 3,5 Zimmer · Terrasse 23,58 m²
Wohnfl. mit Ant. 50% Terrasse: 96,40 m² · Keller: 10,68 m²
Preis: auf Anfrage · Status: verkauft

Whg. 2 – Erdgeschoss links (Plan EG)

Whg. 2 · EG links

84,84 m² · 3,5 Zimmer · Terrasse 11,44 m²
Wohnfl. mit Ant. 50% Terrasse: 90,57 m² · Keller: 9,21 m²
Preis: 435.500 € · Status: verfügbar

Whg. 3 – Erdgeschoss mitte (Plan EG)

Whg. 3 · EG mitte

52,81 m² · 2,5 Zimmer · Terrasse 10,26 m²
Wohnfl. mit Ant. 50% Terrasse: 57,95 m² · Keller: 9,21 m²
Preis: auf Anfrage · Status: verkauft

Whg. 4 – Erdgeschoss rechts (Plan EG)

Whg. 4 · EG rechts

84,84 m² · 3,5 Zimmer · Terrasse 8,68 m²
Wohnfl. mit Ant. 50% Terrasse: 89,19 m² · Keller: 9,21 m²
Preis: auf Anfrage · Status: reserviert

Whg. 5 – Dachgeschoss links (Plan DG)

Whg. 5 · DG links + Spitzboden

68,89 m² · 3,5 Zimmer · Balkon 14,52 m²
Wohnfl. mit Ant. 50% Balkon: 76,15 m² · Keller: 9,21 m²
Preis: auf Anfrage · Status: reserviert

Whg. 6 – Dachgeschoss mitte (Plan DG)

Whg. 6 · DG mitte + Spitzboden

104,22 m² · 3,5 Zimmer · Balkon 11,14 m²
Wohnfl. mit Ant. 50% Balkon: 109,79 m² · Keller: 10,68 m²
Preis: auf Anfrage · Status: reserviert

Whg. 7 – Dachgeschoss rechts (Plan DG)

Whg. 7 · DG rechts + Spitzboden

68,89 m² · 3,5 Zimmer · Balkon 14,52 m²
Wohnfl. mit Ant. 50% Balkon: 76,15 m² · Keller: 10,89 m²
Preis: auf Anfrage · Status: verkauft

Persönliche Beratung

Für Beratung und Ortstermine stehen wir Ihnen gerne zur Verfügung. Nutzen Sie bitte das Kontaktformular – wir melden uns zeitnah zurück.